Cromley Row
Floorplans
Features
Green/LEED
Location
Contact
Floor Plans
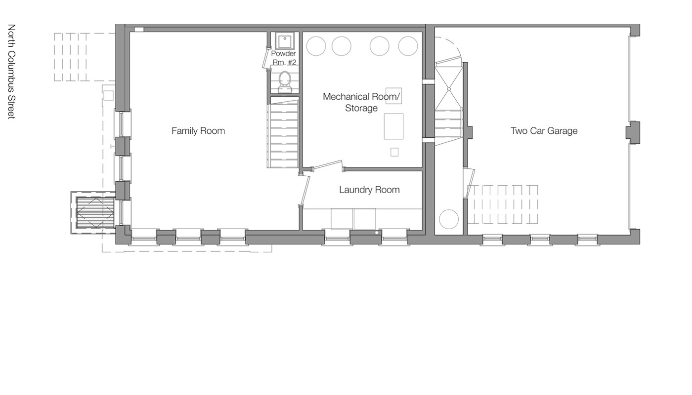
Basement Floor Plan
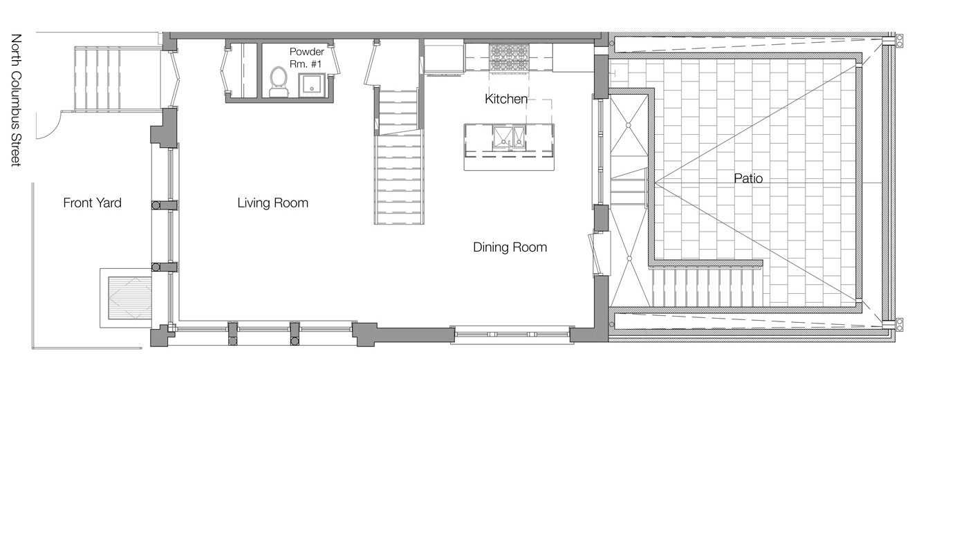
First Floor Plan
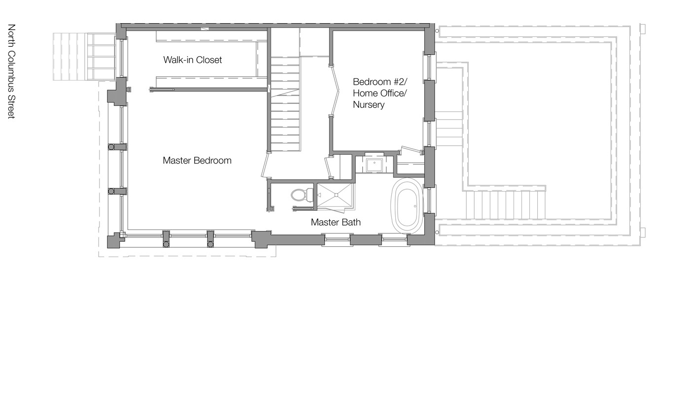
Second Floor Plan
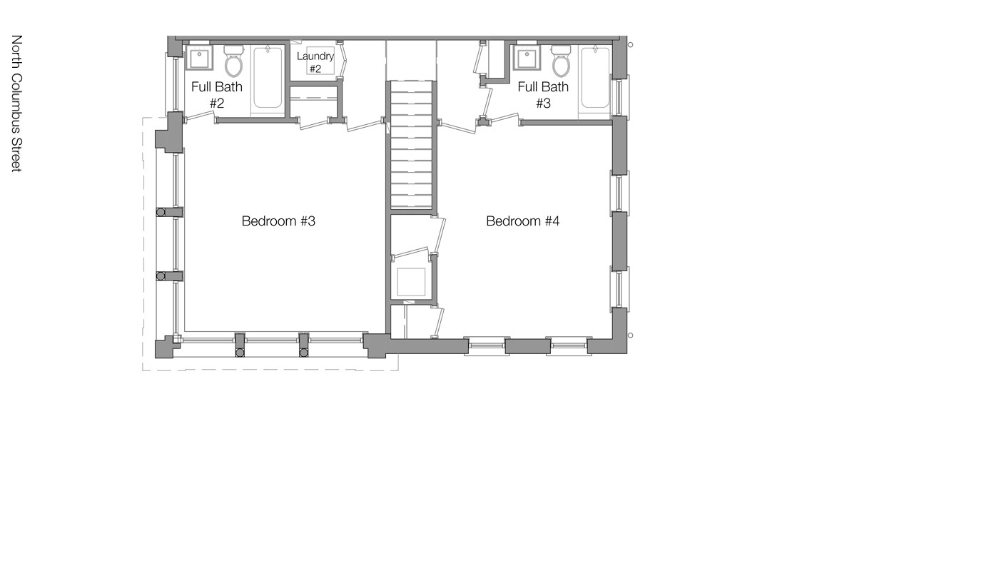
Third Floor Plan